в погрузчике ПК46
в погрузчике ПК65
Для повышения надежность и ресурса уплотнительных узлов Уплотнительные манжеты отечественного производства заменены на манжеты Simrit ( марка материала FKM585).
февраль 2010 года - февраль 2011 года
Для устранения дефектов по течи, повышение надежности в эксплуатации Краник сливной 353-1305010-А заменен на Кран ПП6-1 ОСТ 37.001.241-81
август 2010 г.
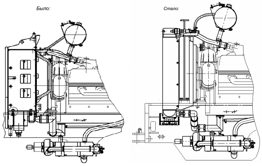
Для повышения эффективности и надежности работы системы охлаждения двигателя введен расширительный бачок КамАЗ 5320-1311010-30, применен более мощный радиатор водяной 54115Ш-1301010-01, применен алюминиевый радиатор масляный 50К-1013010-02. Изменена конструкция блока радиаторов для снижения обдува радиатора отраженным горячим воздушным потоком от двигателя.
сентябрь 2010 г.
Для устранение дефектов по течи, повышение надежности в эксплуатации Краник проходной 2201С28-Б ОСТ 37.001.240-81 заменен на Кран ПП6-1 ОСТ 37.001.241-81
декабрь 2010 года
Для устранения нагрева масла в гидробаке, исключения перегрева и расплавления бочка омывателя увеличена площадь защитного экрана.
декабрь 2010 г.
Для увеличения срока службы манжет в крышке ПК65.11.01.603 выполнена проточка для лучшего отвода масла от манжет.
февраль 2011 года
Для удобства в эксплуатации и снижения трудоемкости при демонтаже заднего моста изменена конструкция крепления заднего моста для возможности его демонтажа без снятия двигателя.
февраль 2011 г.
Для повышения износостойкости рабочего элемента и удобства замены в эксплуатации Зуб ПК46.81.00.001 заменен на коронку 205-70-19570 с адаптером 205-939-7120.
июнь 2011 г.
Для повышения износостойкости рабочего элемента и удобство замены в эксплуатации штатный зуб и адаптер заменен на коронку 205-70-19570 с адаптером импортного производства.
июнь 2011 г.
Для улучшения теплоотвода из подкапотного пространства введена перфорация на листе шторки.
ноябрь 2011 г.
Для дополнительной защиты ячеек радиатора от загрязнения введена рамка с сеткой ЧТЗ-ПК65.52.04.050.
ноябрь 2011 г.
Для повышения защищенности погрузчика от брызг грязью введено увеличенное заднее крыло.
ноябрь 2011 г.
Для повышения степени очистки топлива заменен фильтр грубой очистки топлива 204А-1105510-Б на фильтр предварительной очистки топлива Preline PL270.
декабрь 2011 г.
С целью повышения надежности мостов ведущие мосты ОДМ.73.001-6 производства ЛКМЗ, Украина заменены на мосты ведущие ZL 45-1 производства фирмы «Цзинь-Чэн-МОСТ», Китай.
май 2012 г.
Введен ковш ЧТЗ-ПК65.81.00.300 увеличенной емкости до 5 м³.
май 2012 г.
Для удобства в эксплуатации Масло моторное 15W-40, CE SAE J 300 JUN87 и Масло М-6з/10-В ГОСТ 10541-78 заменены на Масло моторное 5W-40, CE SAE J 300 JUN870 (всесезонное).
август 2012 года
Для снижения массы погрузчика на 140 кг введен облегченный ковш ЧТЗ-ПК65.81.02.000.
октябрь 2012 г.
Для улучшения условий работы оператора в кабину введен дополнительный отопитель «Air Тор 2000 ST» (Webasto).
февраль 2013 г.
Для повышения надежности и работоспособности Крана тормозного и гидроаккумуляторов снижено давление в клапане предохранительном тормозной системы с 210 до 180 атм.
март 2013 г.
Введен ковш общего назначения ЧТЗ-ПК65.80.00.300 увеличенной емкости до 4,5 м³.
март 2013 г.
С целью повышения надёжности системы охлаждения погрузчика ПК65 с двигателям ЯМЗ-238М2-51 (компл. 238М2-1000175-51) ЯМЗ-236 применён фронтальный радиатор фирмы «HYDAC».
Применение фронтального радиатора обеспечивает:
Было:
Стало:
2014 г.
Для увеличения надежности открывания (закрывания) капота, удобства в обслуживании и снижения металлоемкости применены новые замки, в задней створке лобовины газовые упоры заменены на петли.
2014 г.
Для упрощения конструкции, снижения металлоёмкости, повышения удобства обслуживания убраны газовые упоры, старые замки сложной конструкции заменены на новые покупные, введена новая стойка.
2014 г.
2014 г.
С целью повышения надёжности системы охлаждения погрузчика ПК65 с двигателям ЯМЗ-238М2-51 (компл. 238М2-1000175-51) взамен радиаторов 54115Ш-1301010-01 - 1 шт , 50К-1013010-02 ТУ 34 30-052-22593845-2009 - 2 шт., РМ-Т040-1013017 – 1 шт. применён фронтальный блок радиаторов БР-70Б.1301.000 ООО «Оренбургский радиатор».
Применение фронтального радиатора обеспечивает:
декабрь 2015 г.
С целью улучшения центрирования соединяемых деталей, уменьшения количества деталей в узле, повышения надежности при динамических нагрузках и возможности передачи больших вращающихся моментов за счет большей поверхности контакта, шпоночное соединение заменено на шлицевое.
2015 г.
Для упрощения смены рабочего оборудования в конструкции погрузчика предусмотрена возможность установки быстросъемного устройства - квик-каплера БКК-2-QF.
2015 г.
На фронтальном погрузчике установлен фильтр «Pre Line PL 270» фирмы MANN+HUMMEL предварительной очистки топлива.
С целью улучшения работы фильтра «Pre Line PL 270» в регионах с холодным климатом используется возможность подогрева топлива в фильтре. Встроенный в фильтр «Pre Line PL 270» подогреватель с напряжением 24 В и мощностью 350 Вт служит для подогрева топлива, что предотвращает образование парафина в фильтре при минусовых температурах.
2015 г.
Защита фар от механических повреждений.
2015 г.
Защита узлов трансмиссии и гидравлических систем от механических и термических повреждений (по требованию потребителя).
2015 г.






















